Tin tức
Quảng cáo bên trái
Ngôi nhà một tầng khiến nhiều người mơ ước
.jpg)
Cũng như những người dân miền Tây khác, chủ của khu đất rộng 720 m2 ở thành phố hoa Sa Đéc (Đồng Tháp) yêu cây cảnh, sông nước. Anh chị muốn có một ngôi nhà vừa đủ để dành phần lớn diện tích đất làm sân vườn.

Khu nhà một tầng và một gác mái nhỏ được bố trí lùi sát về phía sau, tách biệt hoàn toàn với con đường ồn ào phía trước. Mặt bằng xây dựng là 250 m2, sân vườn là 470 m2. Lối dẫn ra vườn sau nhà cũng có những giàn quả, giò hoa lan trang trí.

Màu xanh của thiên nhiên được dẫn tiếp từ ngoài vườn theo lối đi vào tới tận trong nhà. Ngay ở bậc thềm là một hồ sen, súng và những bình cây trang trí xinh xắn.

Trước khi làm nhà, chủ nhà đã trao đổi rất kỹ với kiến trúc sư, xem trước những hình ảnh 3D của công trình để chỉnh sửa phù hợp. Bởi vậy, khi nhà được xây dựng, gia chủ có thể yên tâm giao phó hoàn toàn cho bên thiết kế và thi công.

KTS Nguyễn Hữu Công Khanh (K+ Architects) còn đưa thêm những mảng hồ nước, cây xanh vào trong nhà, biến không gian này trở thành trung tâm kết nối mọi phòng.

Khu vực này cũng là giếng trời lấy sáng giúp cho cây xanh có thể phát triển tốt.

Phần bậc thềm dẫn lên tầng gác mái được biến thành phần hiên nghỉ ngơi để các thành viên trong nhà có thể ngồi chơi đọc sách, trò chuyện, ngắm hồ hoa súng.

Vật liệu thô như gạch mộc, nền xi măng được sử dụng tối đa làm cho công trình càng gần hơn với thiên nhiên.

Riêng khu vực bếp nấu được đầu tư các trang thiết bị hiện đại, giúp gia chủ có thể chuẩn bị những bữa cơm nhanh chóng, tiện lợi.

Từ khu nấu nướng, người làm bếp có thể nhìn ra sân vườn bên ngoài, hồ nước giữa nhà.

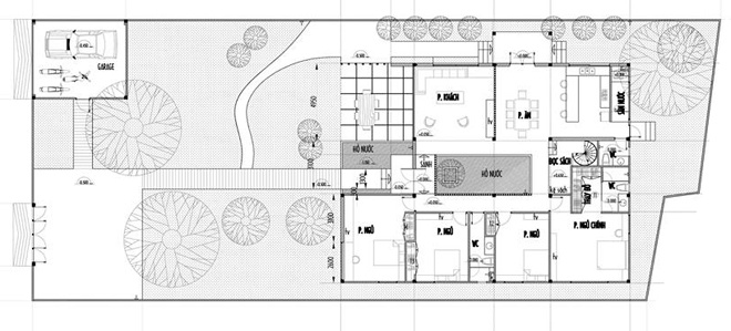
Mặt bằng rộng 250 m2 có thể bố trí được 4 phòng ngủ. Trong khi đó, gia đình chỉ có 4 người (2 vợ chồng, 2 con nhỏ đang ngủ chung). Bởi vậy, kiến trúc sư đưa ra ý tưởng chỉ làm nhà một tầng là đủ cho nhu cầu dài hạn.

Tầng một có phòng khách, bếp, bàn ăn, 4 phòng ngủ, 3 WC, phòng đọc sách.

Gác mái có thêm một thư viện.
Tin tức khác
- Ấn tượng với nhà 2 tầng cho vợ chồng trẻ, chi phí 1,3 tỷ đồng(04/04/25)
- Ấn tượng với thiết kế nhà ống 4 tầng lạ mắt, cực thoáng(04/04/25)
- Cải tạo căn hộ 114 m2 tone đen trắng với 600 triệu đồng(03/04/25)
- Tạo phong cách cho phòng khách nhỏ với không gian mở(03/04/25)
- Vì sao nhiều hộ dân Nha Trang chỉ được cấp phép xây dựng nhà tạm?(03/04/25)
- Nhà ven đô cho gia đình 3 thế hệ có sân phơi thóc trên tầng(04/10/24)
- Đón nắng trong nhà phố(04/10/24)






