Tin tức
Quảng cáo bên trái
Cách xây nhà một tầng vừa mát vừa tiết kiệm
Nhà tôi có mảnh đất 2.000m2 ở Thạch Thất (Hà Nội). Tôi muốn làm nhà một tầng đơn giản, tiết kiệm và thông thoáng. Nhà cần có phòng khách, bếp ăn, 3 phòng ngủ cho ông bà, vợ chồng tôi và 2 con trai. Tôi thích có sảnh thật rộng hoặc hàng hiên bao quanh. Tôi dự kiến kinh phí 800 triệu đồng có đủ không?
Đất nằm ở ngã ba nên cổng chính bị đường đâm thẳng vào nhà, phía gần sau có góc nhọn. KTS tư vấn giúp tôi chi phí xây dựng và cách thiết kế để khắc phục các nhược điểm trên. (Kim Hoa).
KTS Vũ Quang Định (Kiến trúc Aspace) tư vấn như sau:
Cổng chính nằm ở ngã ba cho cảm giác không được thuận tiện và an toàn. Khu đất có các mặt tiếp giáp đường khá nhiều nên anh chị có thể bố trí lối vào lệch khỏi vị trí ngã ba. Góc thừa của khu đất sẽ được trồng cây xanh vừa làm mềm không gian vừa tạo ra cảm giác về một không gian vuông vắn, xanh mát.

Lối vào bố trí lệch khỏi ngã ba đường.
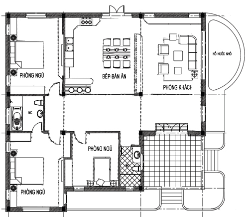
Với nhu cầu các phòng như trên, gia đình chỉ cần xây dựng nhà một tầng trên diện tích 160 m2. Ngoài phòng khách, bếp ăn thông thoáng, sảnh lớn, các phòng ngủ đều có diện tích tầm 18-20 m2. Trong đó có một phòng ngủ có WC riêng, một nhà vệ sinh chung cho cả nhà.
Nhà nên nằm giữa khu đất để tách biệt với các đường đi bên ngoài nhờ các mảng vườn. Garage ngoài trời, giàn che trồng thiên lý, bầu, bí, mướp hương... Vườn rau xanh nằm ở phần hiên sau. Các khoảng sân nên đổ khuôn bê tông đục lỗ hoặc bê tông xếp có khe hở, để cỏ mọc lên sẽ cắt tỉa, tạo vẻ đẹp tự nhiên.

Phối cảnh nhà nằm giữa vườn cây xanh, sân bê tông có các khe hở để cỏ mọc.
Để nơi ở mát, ngoài việc trồng cây xanh bao quanh khuôn viên, cách mở cửa, xây tường dày cũng quan trọng. Mở cửa đúng điểm đón gió, thoát gió sẽ làm cho ngôi nhà luôn có khí tươi lưu thông, mát mùa hè, ấm áp mùa đông.
Chiều cao nhà cũng nên vừa phải (khoảng 3m) là vừa đẹp, thuận tiện sử dụng, tiết kiệm vật liệu, nhân công.
Anh có thể áp dụng các gói kinh phí như sau: Gói tiết kiệm 4,3 triệu/m2; gói bình thường 4,8 triệu/m2; gói khá 5,8 triệu/m2.

Bố trí các phòng trong nhà.
Gói này đã gồm vật liệu xây thô, vật liệu hoàn thiện, nhân công, thiết bị chiếu sáng, thiết bị vệ sinh, bếp, cầu thang, gạch ốp lát, cửa, lan can. Tùy vào mức độ đầu tư, gia chủ cân đối lựa chọn vật tư cho phù hợp và đảm bảo chất lượng, thẩm mỹ.
Với nhu cầu và kinh phí trên, anh nên sử dụng gói 4,3 triệu/m2, dùng các vật liệu, thiết bị do Việt Nam sản xuất. Chủ nhà có thể dành thời gian kết hợp với kiến trúc sư tìm tòi những chủng loại, mẫu mã thẩm mỹ, chất lượng phù hợp.
Tin tức khác
- Ấn tượng với nhà 2 tầng cho vợ chồng trẻ, chi phí 1,3 tỷ đồng(04/04/25)
- Ấn tượng với thiết kế nhà ống 4 tầng lạ mắt, cực thoáng(04/04/25)
- Cải tạo căn hộ 114 m2 tone đen trắng với 600 triệu đồng(03/04/25)
- Tạo phong cách cho phòng khách nhỏ với không gian mở(03/04/25)
- Vì sao nhiều hộ dân Nha Trang chỉ được cấp phép xây dựng nhà tạm?(03/04/25)
- Nhà ven đô cho gia đình 3 thế hệ có sân phơi thóc trên tầng(04/10/24)
- Đón nắng trong nhà phố(04/10/24)






